205d.com > 205 Diesel et turbo-Diesel > La technique > Electricité
Electricité
1. Généralités
1.1 Caractéristiques de la génération
Alternateur triphasé, redresseur et régulateur incorporés, courant de sortie maximal 55A sous 13,5V, batterie 12V/50Ah.
Marques et types possibles : Bosch 0 120 486 259 ou Mitsubishi A002T 26391.
| Puissance | 700W |
| Débit sous 13,5V...(régime alternateur) | |
| 1200 tr/min | 10A |
| 2000 tr/min | 36A |
| 2350 tr/min | 40A |
| 6000 tr/min | 55A |
| Résistance du rotor à 20°C | 4 ohms |
| Résistance du stator à 20°C | 0,14 ohms |
Courbe de charge théorique :
1.2 Caractéristiques du démarreur
Types Bosch 0 001 314 034 ou Mitsubishi M 001T 50 172.
| Marque | Bosch | Mitsubishi |
| Puissance nominale | 1.4kW |
|
| Consommation couple bloqué | 690-780A / 6V 560-650A / 5V |
650A (sous quelle tension ?) |
| Consommation à vide | 50-80A à 7300/9300tr/min | 60A (à quel régime ?)
|
2. Boîte à fusibles
Affectations de la boîte à fusible :
Fusible (désignation) |
Intensité (A) |
Fonctions protégées (peut
varier suivant équipement) |
F1 |
10 |
Témoin de charge batterie |
F2 |
25 |
Autres témoins non indiqués en F1 Pompe à eau additionnelle Bruiteur oubli veileuses Eclairage vide-poches Clignotants Chauffage Sièges chauffants |
F3 |
25 |
Essuie glace AV & AR |
F4 |
15 |
LP / antibrouillards |
F5 |
10 |
Warning |
F6 |
--- | |
F7 |
25 |
Montre Allume cigare Plafonnier Alimentation attelage FC Eclairage de coffre +P |
F8 |
25 |
Avertisseur sonore (klaxon) Puissance lunette AR |
F9 |
20 |
VE |
F10 |
5 |
Feu de brouillard (AR) |
F11 |
5 |
Veilleuses AR Eclairage de plaque |
F12 |
5 |
--- |
F13 |
5 |
Veilleuses AV Eclairage planche de bord & combiné |
F14 |
15 |
(Pompe à essence immergée pour les essence) |
3. Schémas électriques
3.1 Abréviations utilisées pour les couleurs de fils
| Abréviation | Couleur |
| OR | Orange |
| VE | Vert |
| BE | Bleu |
| BA | Blanc |
| MR | Marron |
| JN | Jaune |
| RG | Rouge |
| GR | Gris |
| VI | Violet |
| VJ | Vert-jaune |
| RS | Rose |
| BG | Beige |
Note importante : il se peut que les couleurs des fils indiqués sur le schéma ne correspondent pas à ceux présent sur le véhicule.
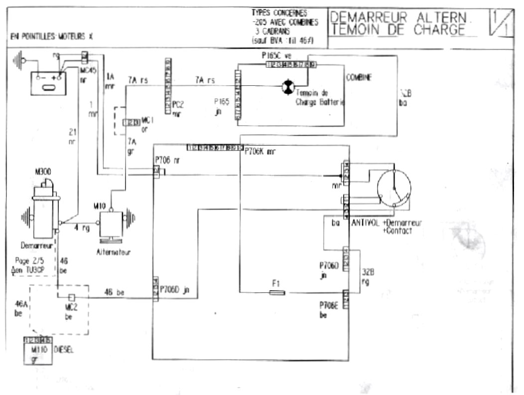
3.2 Circuit de charge

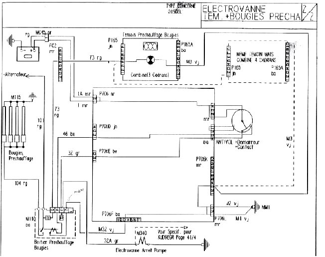
3.3 Circuit de préchauffage

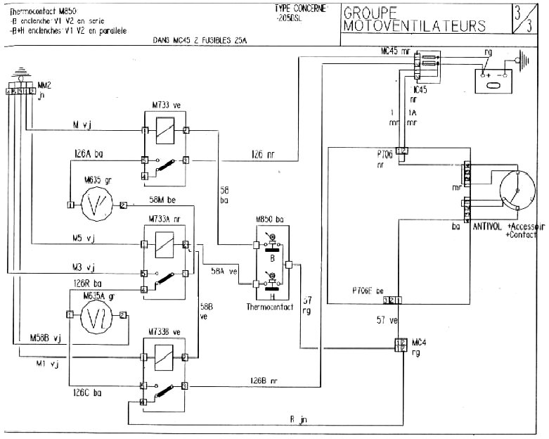
3.4 Motoventilateur (2 ventilateurs, 2 vitesses, le classique des Diesel)

Vous pouvez avoir l'intégrale des schémas électriques des 205 en cliquant ici (format Acrobat, 15Mo).